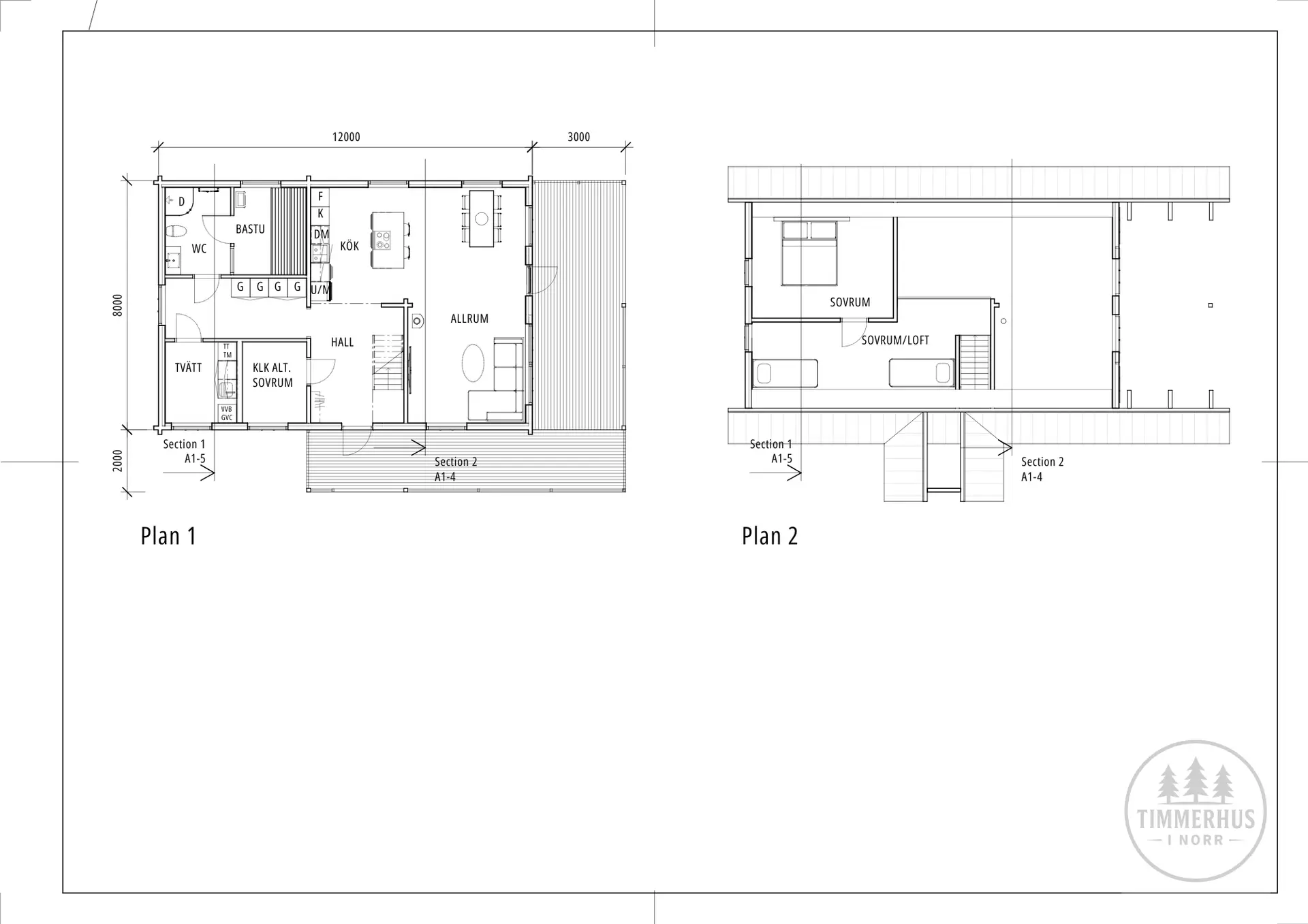
Detta timmerhus erbjuder en ljus och inbjudande öppen planlösning med gott om utrymme för både avkoppling och samvaro. På den mysiga loftvåningen finns plats för sovrum eller extra förvaring – vilket frigör yta på entréplanet för lyxiga tillval som bastu eller klädkammare i anslutning till hallen. Husets smarta konstruktion, med endast en genomgående timmervägg och en centralt placerad innervägg i timmer, ger stor frihet att anpassa planlösningen efter egna önskemål och behov.
Observera att angiven loftyta avser golvyta och att full takhöjd ej förekommer på hela loftet.


